Overview
2 Bedroom Flat for sale in Warstone Lane, Birmingham
2
2
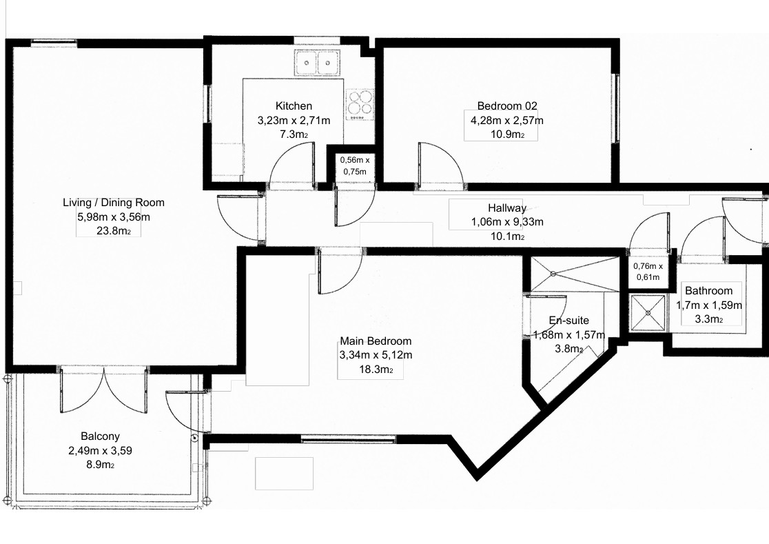
Maguire Jackson are pleased to offer for sale this well presented two-bedroom property in the ever popular Heritage Court development in the Jewellery Quarter. Located close to all amenities, shops, bars and restaurants. The proeprty is being sold with no onward chain and has allocated parking.
Key Features:
- Lift access
Jewellery Quarter
Nearby transport links
Allocated secure parking
Two double bedrooms
Private balcony with open outlook
Concierge service
This well presented apartment features a bright and spacious open-plan living and dining area, complete with a fully fitted contemporary kitchen, perfect for modern living. There are two generously sized double bedrooms one of which includes an en-suite shower room. The second bedroom offers excellent versatility, ideal as a guest room or a home office. The master bedroom stands out with its impressive size, excellent natural light, and ample built-in storage.
Location
The Herritage Court building occupies a prominent location in the city's Jewellery Quarter, a new and thriving residential neighbourhood for Birmingham, only minutes' walk from the city centre. Located in the c...
Read more
This well presented apartment features a bright and spacious open-plan living and dining area, complete with a fully fitted contemporary kitchen, perfect for modern living. There are two generously sized double bedrooms one of which includes an en-suite shower room. The second bedroom offers excellent versatility, ideal as a guest room or a home office. The master bedroom stands out with its impressive size, excellent natural light, and ample built-in storage.
Location
The Herritage Court building occupies a prominent location in the city's Jewellery Quarter, a new and thriving residential neighbourhood for Birmingham, only minutes' walk from the city centre. Located in the conservation area, The property enjoys all the benefits of a city location - less than a 15-minute walk to Birmingham's Central Business District and under 0.3 miles to the JQ station.
Tenure - Leasehold
Length of lease - 102 years remaining.
Ground Rent - £100 per annum.
Service charge - £5,000 per annum.
Local authority - Birmingham City Council
Council tax band - E
EPC - B
Read less
Important Information
- This is a Leasehold property.
- The annual cost for the ground rent on this property is £100
- The annual service charges for this property is £5000
- This Council Tax band for this property is: E
- EPC Rating is B
Media