Overview
Retail Property (High Street) for sale in Albion Street, Birmingham
Currently the workshop and offices are occupied by an established firm of jewellers, who are downsizing after 161 years.
Key Features:
- Freehold
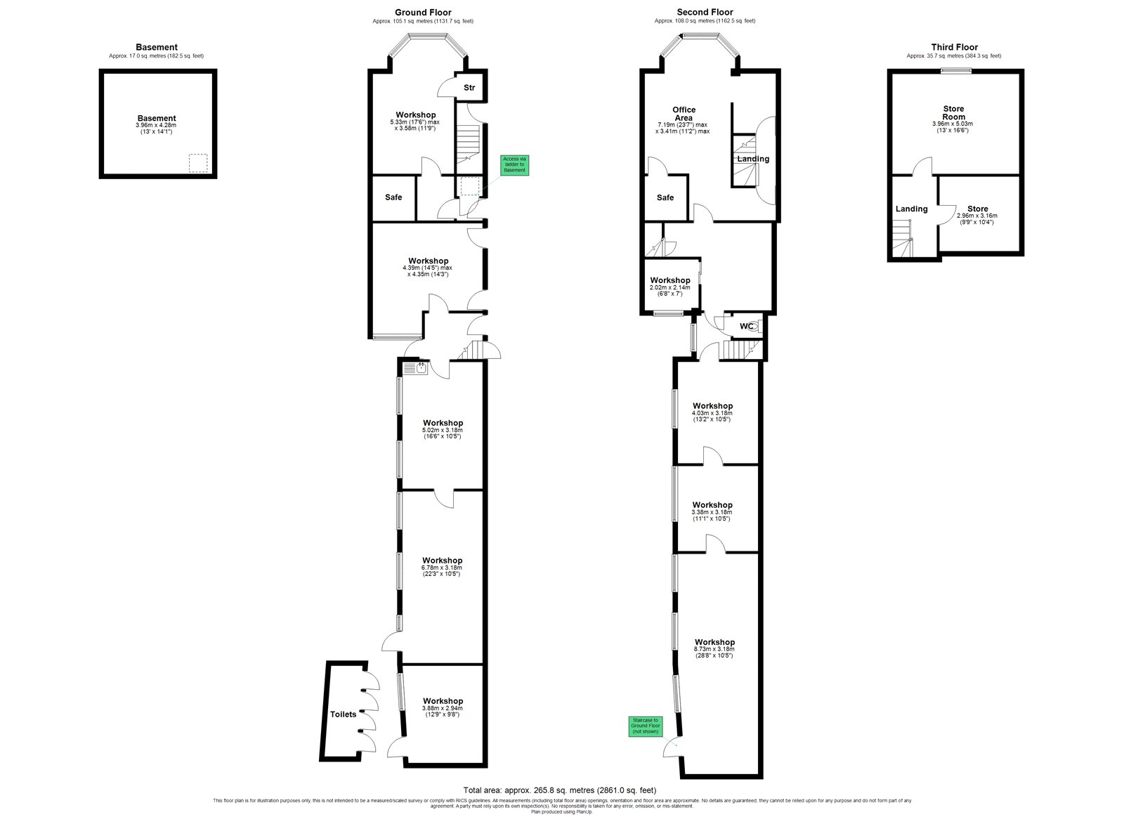
Three storey grade II property with basement
Circa 2,861 Sq ft (265.8 m2)
Currently workshops, but with enormous potential for conversion stp.
Heart of Jewellery Quarter
Description
A rare largely untouched three storey jewellers’ office and workshop premises with basement plus a two storey rear extension. Circa of 2,861 sq ft (265.8 m2). The Grade II listed building was built in 1839 the property is a part of a listed terrace of three quarter houses with entrance halls serving two more dwellings which latterly had rear extensions added. Number 61 had the extension added in 1875.
The immediate joining properties have been converted in recent years into live / work and fully residential apartments. Close by on the same terrace is JW Evans, a former jewellery manufacturer, now owned by English Heritage.
Location
Albion Street is loca...
Read more
Description
A rare largely untouched three storey jewellers’ office and workshop premises with basement plus a two storey rear extension. Circa of 2,861 sq ft (265.8 m2). The Grade II listed building was built in 1839 the property is a part of a listed terrace of three quarter houses with entrance halls serving two more dwellings which latterly had rear extensions added. Number 61 had the extension added in 1875.
The immediate joining properties have been converted in recent years into live / work and fully residential apartments. Close by on the same terrace is JW Evans, a former jewellery manufacturer, now owned by English Heritage.
Location
Albion Street is located close to Frederick Street in the heart of Jewellery Quarter. The Jewellery Quarter railway and metro station is found within a 10 minutes’ walk away.
Tenure
Freehold
£395,000
Business Rates
Rateable Value:
Ground floor and front - £2,300
Workshops and Premises - £6,200
VAT
We understand that this property has not been elected for VAT.
Legal Costs
Each party is responsible for their own legal costs.
EPC
EPC rating E.
Viewings
Strictly by prior appointment with sole agents Maguire Jackson.
Money Laundering
The money laundering regulations require identification checks to be undertaken by all parties purchasing or letting properties. We will therefore be requesting proof of identification for all the parties involved in the transaction.
Read less